Brooks Row, Leafield, OX29
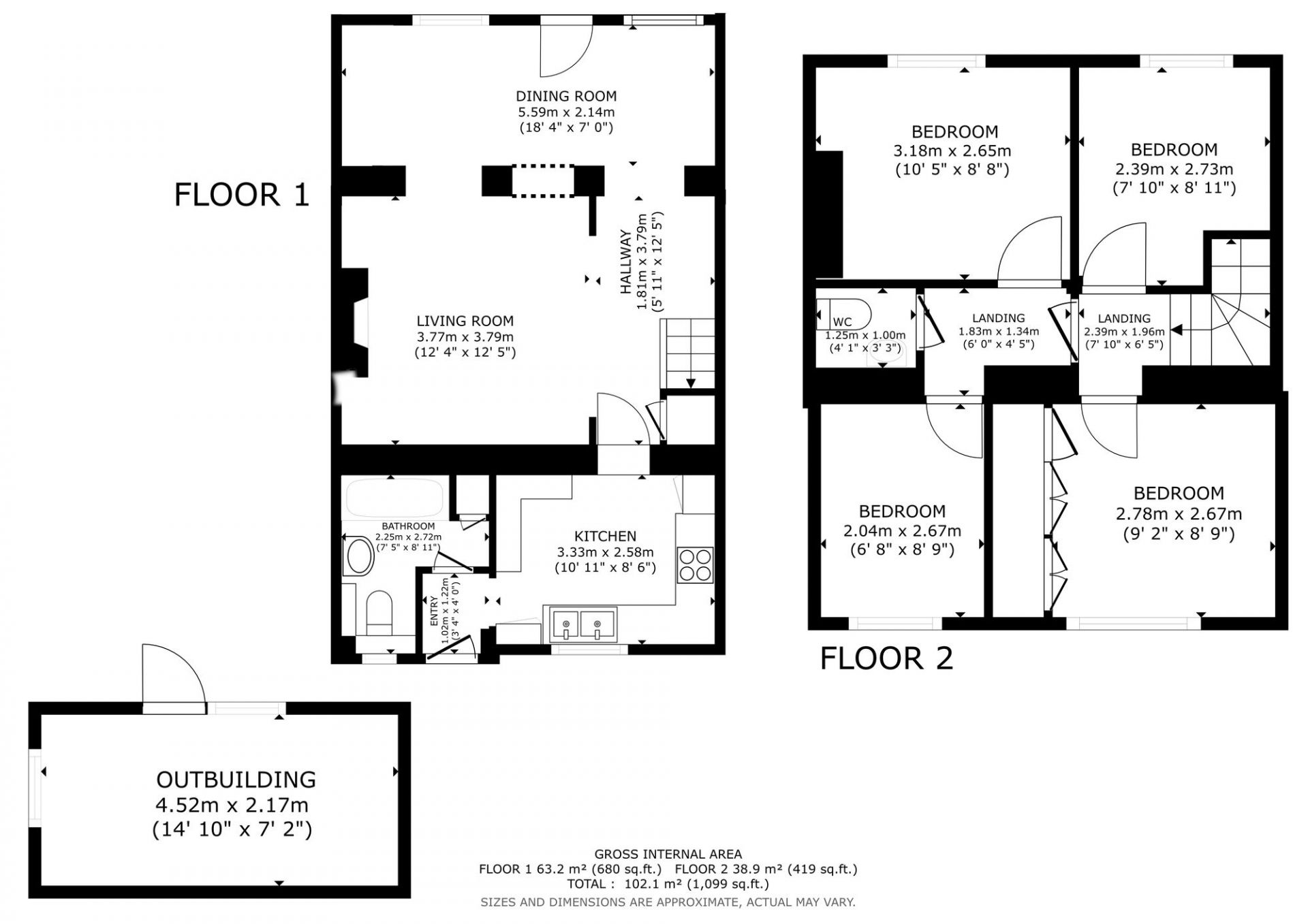
Welcoming to the market with No Onward Chain, this attractive and extended character property sits within a delightful row of period cottages in the sought-after village of Leafield, near Witney. Thoughtfully refurbished throughout, the home combines timeless charm with modern comfort, showcasing lovely character features including a fireplace with stove.
The accommodation offers a light and welcoming feel, with well-proportioned living spaces and a tasteful finish throughout. The property benefits from no onward chain.
Outside, there is a beautiful, mature garden located a short distance from the cottage — a peaceful and private retreat perfect for relaxing or entertaining.
Leafield is a picturesque Oxfordshire village nestled between the market towns of Witney and Charlbury. Surrounded by stunning countryside, it offers a strong sense of community along with a village shop, pub, and primary school. Excellent transport links and nearby amenities make Leafield a desirable location for those seeking village life with convenient access to Oxford, Witney, and the Cotswolds.
