Steep Hill, Crawley, OX29
Semi Detached
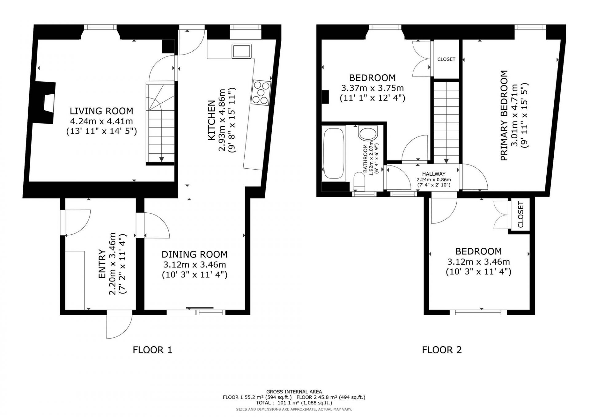
Nestled just inside Steep Hill, this three-bedroom period cottage boasts characterful interior throughout and generous living space. Alongside three good-sized bedrooms, the property features a modern open plan fully fitted kitchen/dining area leading onto a private, landscaped garden. Additionally, it also offers a separate cosy living room with a working fireplace, utility room and one family bathroom.
Crawley is a small village situated just above a sharp bend on the River Windrush, ideal for pleasant countryside walks. Witney town centre is easily accessible, providing an array of local shops and restaurants.
